美容室を運営する
店舗・内装デザイン会社
美容室を運営する
店舗・内装デザイン会社
Company
ABOUT US
会社概要
採用情報
パートナー募集
Service
美容室内装デザイン
低コスト改装 リサロ
化粧品事業
美容室運営事業
サロン経営支援
マイスタ®サロン事業
Works
施工実績
Instagram / 内装実績
Interview
お客様の声
Media & News
ALL
イベントニュース
メディア掲載
お知らせ
プレスリリース
Blog
お役立ちコラム
スタッフの日常
Contact
お問合せ
よくあるご質問
【代表電話】
06-6243-8081
受付時間: 10:00~18:00(土日祝除く)
資料請求
Home
>
実績紹介
> little lulu
設計・施工実績
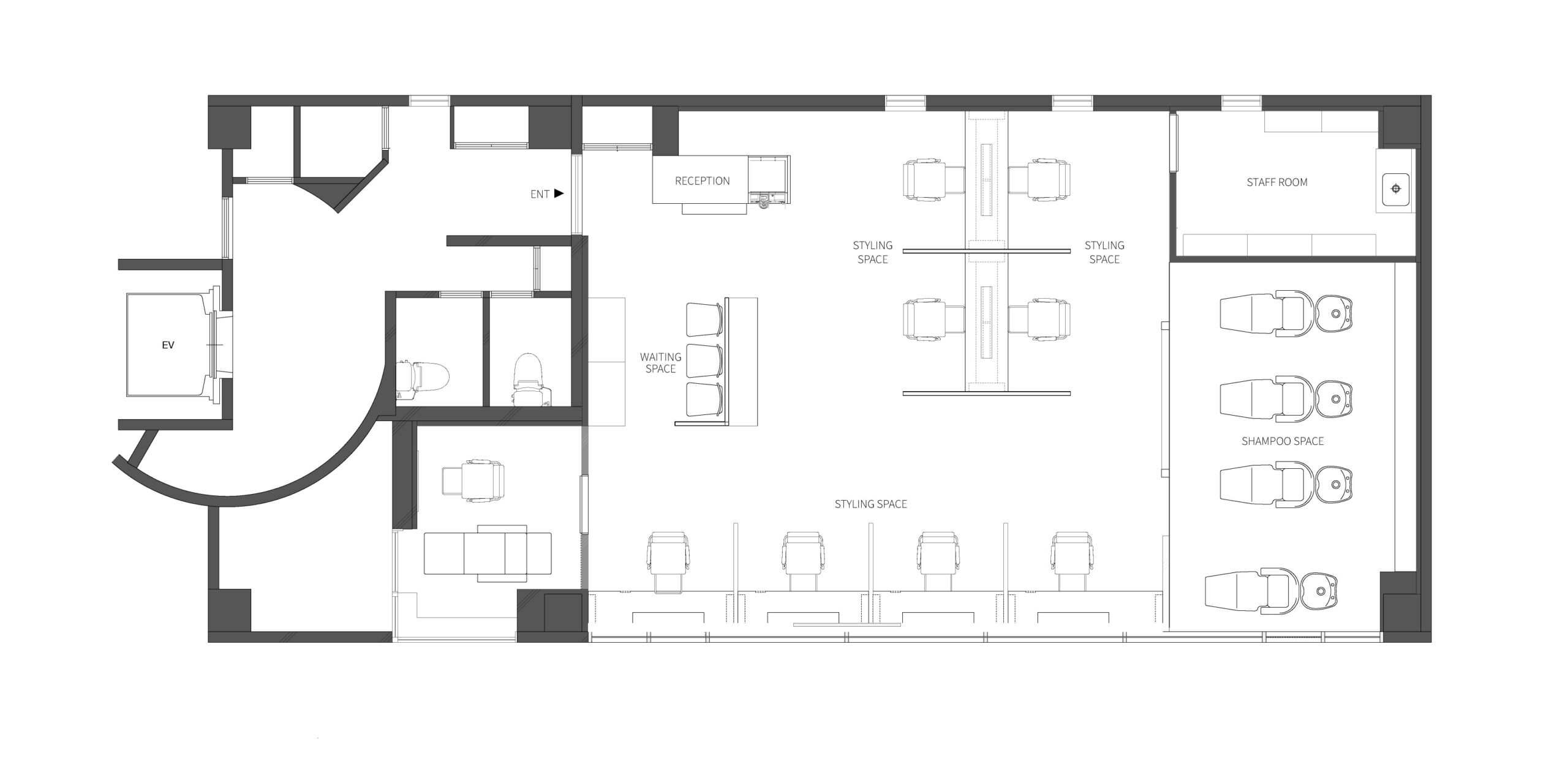
little lulu
SALON DATA
店名 /
little lulu
業態 /
美容室
広さ /
93.0m² / 28.0坪
not ready
設計・施工実績一覧へ戻る
ご相談・資料請求・現地調査は
すべて無料でさせていただきます。
下記よりご相談ください。
お問合せはこちら
< 前へ
一覧へ
次へ >