WORKS 実績紹介 WORKS 実績紹介

Home > 実績紹介 > ASTRE SION

デザイン

設計・施工実績

BEAUCCA

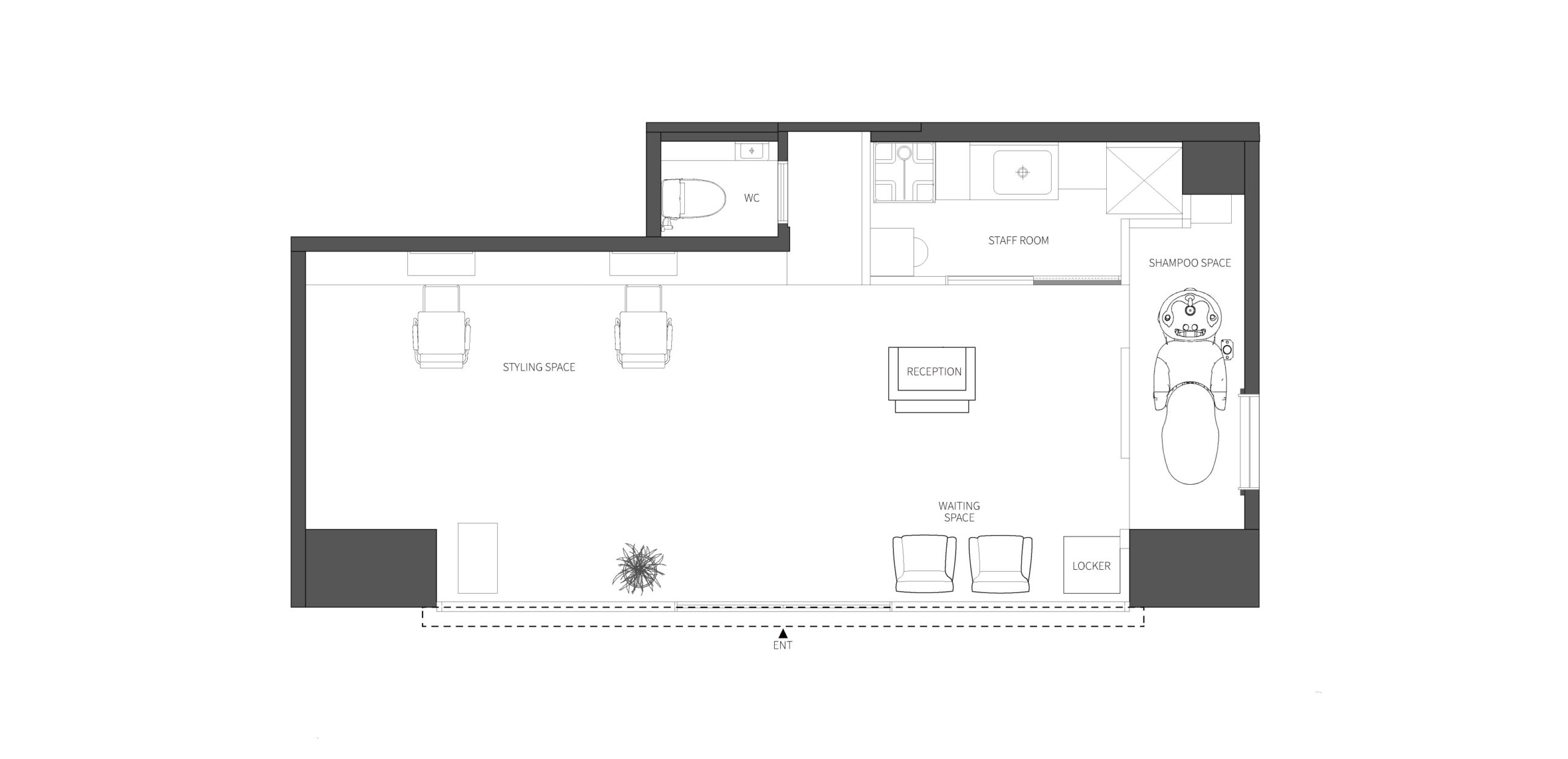
SALON DATA

店名 /
ASTRE SION
業態 /
美容室
広さ /
44.52㎡ / 13.46坪
not ready

ご相談・資料請求・現地調査は
すべて無料でさせていただきます。
下記よりご相談ください。